Элитный квартал «Тишинский бульвар»

Адрес: Москва, ЦАО, Пресненский, Электрический переулок, 1

Метро: Белорусская (Замоскворецкая линия), Улица 1905 Года, Маяковская, Баррикадная 14 мин. пешком

Высота потолков (м.):
3.35 — 8.25
Дата сдачи:
3 квартал 2027 года корпус 3
4 квартал 2027 года корпус 4
4 квартал 2027 года корпус 5
Класс жилья:
Элитные
Паркинг:
подземный
Тип проекта:
Монолитно-кирпичный
Этажность:
3 — 24
Площадь квартир:
- м2
Цена за м2:
50,1 млн.

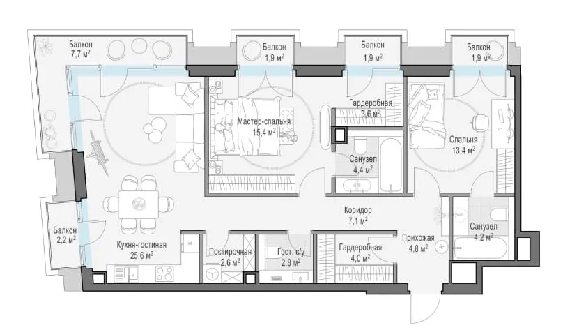
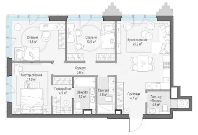
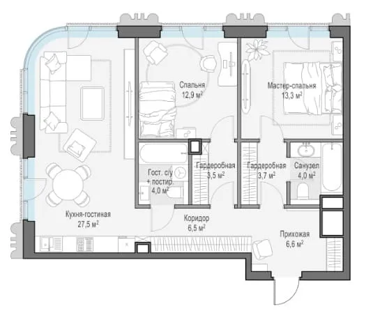
Квартиры в Элитный квартал «Тишинский бульвар», планировки и цены

Элитный квартал «Тишинский бульвар» на карте

Описание Элитный квартал «Тишинский бульвар»

Жилой ансамбль «Тишинский бульвар» выделяется на московском рынке элитной недвижимости благодаря своему эксклюзивному расположению в историческом Пресненске. Этот проект, реализуемый компанией Sminex-Интеко, предлагает будущим резидентам высокий уровень комфорта и качества жизни.

О проекте

Престижный квартал включает 14 зданий высотой от трех до двадцати пяти этажей. Разработанный с учетом последних архитектурных и строительных инноваций проект поручен известному девелоперу Sminex-Интеко. Завершение строительства запланировано на последний квартал 2027 года.

Архитектура жилого комплекса

Эстетичный вид комплекса «Тишинский бульвар» характеризуется смелым сочетанием традиций и современных тенденций. Особенности внешнего облика включают:

  • Материалы фасада. Внешние стены зданий отделаны металлическими панелями, клинкерным кирпичом и натуральным камнем. Эти материалы выбраны не только за их долговечность, но и за способность добавлять структурную выразительность зданиям.
  • Динамика форм. Каждый корпус проявляет активную пластичность фасадов, что делает архитектурный облик комплекса динамичным и запоминающимся. Такое строение фасадов усиливает общее визуальное впечатление и подчеркивает индивидуальность проекта.
  • Интеграция в окружение. Проектирование зданий ведется с учетом исторической застройки района, что позволяет новым строениям органично вписаться в существующий ландшафт. Это сочетание новизны и классики сохраняет атмосферу старой Москвы, придавая району особый шарм.

Каждый элемент ЖК Тишинский бульвар продуман до мелочей, чтобы обеспечить не только функциональность, но и визуальное удовольствие для жителей и гостей комплекса.

Квартиры в ЖК

Квартиры в ЖК Тишинский бульвар предлагаются с разнообразием планировок: от однокомнатных жилищ площадью 46 м² до четырехкомнатных пространств в 150 м². Пентхаусы оснащены террасами и дровяными каминами, предоставляя эксклюзивность и расширенные возможности для домашнего уюта. Высота потолков в таких локациях достигает 8,25 метра.

Отделка

Ансамбль предлагает недвижимость без внутренней отделки, что дает новым владельцам полную свободу в оформлении интерьера по собственному вкусу. Это открывает возможности для воплощения персональных дизайнерских решений, подчеркивающих индивидуальность каждого пространства.

Лобби

Вестибюли комплекса соответствуют высочайшим стандартам роскоши и комфорта: высокие потолки и дизайнерская отделка создают первое впечатление о высоком статусе комплекса. В этих местах установлены консьерж-служба и лобби-бар, что делает прием гостей и ежедневное возвращение домой приятными моментами.

Инфраструктура ЖК

Жилой комплекс «Тишинский бульвар» обладает развитой инфраструктурой, предназначенной для удовлетворения потребностей всех его резидентов. Ключевые аспекты включают:

  • Спортивные и оздоровительные учреждения. На территории комплекса расположен фитнес-центр с бассейном длиной 25 метров и спа-зоной. Это место стало настоящим центром здоровья и активности, предлагая жителям все условия для поддержания физической формы и релаксации.
  • Зоны отдыха. Для прогулок и отдыха на свежем воздухе предусмотрены просторные парковые зоны, включая двор-парк площадью 2,1 га с бульваром и сухим фонтаном. Такие места идеально подходят для семейного времяпровождения и отдыха среди природы.
  • Детские и культурные площадки. Для молодых жителей комплекса обустроены современные игровые комнаты и площадки, где дети могут безопасно играть и развиваться. Также функционирует несколько клубов по интересам, что способствует культурному обогащению жителей.

Инфраструктура комплекса создана таким образом, чтобы каждый нашел здесь что-то для себя. Она обеспечивает высокий уровень удовлетворенности и комфорта для всех резидентов.

Локация и расположение

Жилой комплекс «Тишинский бульвар» находится в историческом районе Пресненск, что обеспечивает его резидентам близость к культурному и деловому центру Москвы. Инфраструктура района включает престижные учебные заведения, парки и медицинские центры, расположенные в пешей доступности. Транспортная доступность обусловлена наличием трёх станций метро: «Белорусская», «Улица 1905 года» и «Баррикадная», расположенных на расстоянии не более двух километров. Это местоположение идеально подходит для тех, кто ценит динамику столичной жизни и стремится находиться в центре событий.

Паркинг

Для автомобилистов предусмотрена подземная стоянка на пятьсот мест. Это пространство оборудовано системами контроля доступа и зарядками для электромобилей, подтверждая экологическую направленность проекта.

Ход строительства

Процесс возведения зданий строго соответствует заявленным срокам. Ожидается, что первые жильцы смогут въехать в свои апартаменты уже в конце 2027 года. Регулярное информирование о статусе работ способствует поддержанию доверия и открытости со стороны застройщика.

Заказать обратный звонок

Узнайте больше о проекте. Оставьте номер, и мы вам перезвоним.

Отправляя заявку, вы даёте своё согласие на обработку персональных данных

Хочешь быть в курсе новых строек?

Подпишись на нашу рассылку

Заявка на ипотеку