ЖК "Савеловский сити"

Адрес: Москва, СВАО, Бутырский, ул. Складочная, вл. 1

Метро: Дмитровская 10 мин. пешком Ж/Д станция: Владыкино 22 мин. на транспорте

Высота потолков (м.):
3.10
Дата сдачи:
Дом сдан
Договор:
214 ФЗ
Класс жилья:
Комфорт
Отделка:
Свободная планировка
Паркинг:
Наземный - 4550 м/м
Тип проекта:
Монолитно-кирпичный
Этажность:
19-46
Площадь квартир:
- м2
Цена за м2:
0

Как проехать до ЖК "Савеловский сити"

Метро «Савеловская» → Пройти пешком 160 метров (2 минуты) → Станция Савеловская (Курское направление) → Электрички до Царицыно, Люблино, Чехова, Серпухова, Щербинки (2 минуты в пути) → Станция Станколит → Пройти пешком 890 метров (11 минут) → МФК «Савеловский Сити»Метро «Савеловская» → Пройти пешком 200 метров (2 минуты) → Остановка «Савеловский вокзал» → Маршрутное такси № 406м (2 минуты в пути) → Остановка «Троллейбусный завод» → Пройти пешком 960 метров (11 минут в пути) → МФК «Савеловский Сити»

Пеший путь от метро «Дмитровская» займет около 11 минут.

О проекте

МФК «Савеловский Сити» находится в районе м. «Дмитровская». В данный момент реализуется первая фаза МФК – две башни высотой 19 этажей, общей площадью 34 992 и 27 733 кв. м соответственно. Девелопером проекта стала компания MR Group.

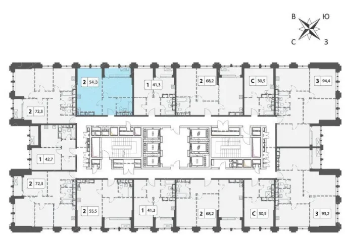
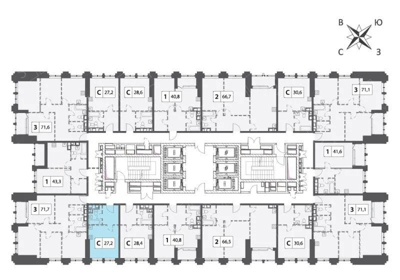
Квартиры в ЖК "Савеловский сити", планировки и цены

ЖК "Савеловский сити" на карте

Описание ЖК "Савеловский сити"

МФК «Савеловский Сити» находится в районе м. «Дмитровская». В данный момент реализуется первая фаза МФК – две башни высотой 19 этажей, общей площадью 34 992 и 27 733 кв. м соответственно. Девелопером проекта стала компания MR Group.

Ипотечные программы:

Ставка
Срок кредита
Сумма
Телефон
Ставка
Срок кредита
Сумма
Телефон

Возрождение

101990, г. Москва, Большой Златоустинский пер., д. 4

Ставка От 11.65%
Срок кредита 30 лет
Сумма От 5 млн руб.
Телефон +7(495)777-08-88

ВТБ24

101000, г. Москва, ул. Мясницкая, д. 35

Ставка От 9,7%
Срок кредита 30 лет
Сумма От 1.93 млн руб
Телефон +7(495)777-24-24

ДельтаКредит

125009, г. Москва, ул. Моховая, д.7

Ставка От 11.5%
Срок кредита до 25 лет
Сумма От 3 млн руб
Телефон +7(495)960-31-61

Московский Индустриальный банк

г. Москва, ул. Орджоникидзе, д. 5

Ставка 12,5%
Срок кредита 5 до 25 лет
Сумма 18 млн. руб.
Телефон +7(495)232-91-06

Енисей

660062, г. Москва, ул. 1-я Ямского Поля, 15, стр. 2

Ставка От 2%
Срок кредита до 30 лет
Сумма От 2 млн руб
Телефон +7(495)640-72-25

Транскапиталбанк

109147, г. Москва, ул.Воронцовская, д. 27/35

Ставка 7.9%
Срок кредита до 25 лет
Сумма до 20000000
Телефон 8 800 100-32-00

Заказать обратный звонок

Узнайте больше о проекте. Оставьте номер, и мы вам перезвоним.

Отправляя заявку, вы даёте своё согласие на обработку персональных данных

Хочешь быть в курсе новых строек?

Подпишись на нашу рассылку

Заявка на ипотеку