ЖК «Москворецкий (Воскресенск)»

Адрес: Подмосковье, Воскресенский, Воскресенск, ул. Ломоносова

Ж/Д станция: Москворецкая 9 мин. пешком Шоссе: Новорязанское шоссе 90 км. от МКАД

Высота потолков (м.):
2.80
Дата сдачи:
Дом сдан
Договор:
214 ФЗ
Класс жилья:
Эконом
Количествово квартир:
189 шт. в первом доме
Отделка:
С отделкой
Паркинг:
Открытая парковка
Тип проекта:
Монолитно-кирпичный
Этажность:
14
Площадь квартир:
- м2
Цена за м2:
45 900 - 68 560

Как проехать до ЖК «Москворецкий (Воскресенск)»

Метро «Выхино» → Пройти пешком 150 метров до станции (2 минуты) → Станция Выхино → Электрички до Голутвина, Рязани-1 (1 час 30 минут в пути) → Станция Москворецкая → Пройти пешком 340 метров (4 минуты в пути) → ЖК «Москворецкий» (Воскресенск)Метро «Выхино» → Пройти пешком 230 метров (3 минуты в пути) → Остановка «м. Выхино» → Автобус № 358 (1 час 24 минуты в пути) → Остановка «Эрисман» → Автобусы № 12, 41, маршрутное такси № 12 (20 минут в пути) → Остановка «Улица Ломоносова» → Пройти пешком менее 100 метров (1 минута) → ЖК «Москворецкий» (Воскресенск)

Новостройка находится в 90 километрах от МКАД. Автомобилисты смогут добраться за 1 час 40 минут до МКАД. На общественном транспорте время в пути до станции метро «Жулебино» составит 1 час 45 минут.

О проекте

ЖК «Москворецкий» возводится в городе Воскресенск на улице Ломоносова.

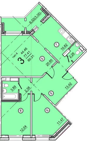
Квартиры в ЖК «Москворецкий (Воскресенск)», планировки и цены

ЖК «Москворецкий (Воскресенск)» на карте

Описание ЖК «Москворецкий (Воскресенск)»

ЖК «Москворецкий» возводится в городе Воскресенск на улице Ломоносова. Застройщиком проекта является компания ЮИТ ВДСК. Согласно проекту будет построен кирпично-панельный трехсекционный 14-этажный дом. Застройщик обеспечивает машиноместом каждого покупателя квартиры.

Ипотечные программы:

Ставка
Срок кредита
Сумма
Телефон

ВТБ24

101000, г. Москва, ул. Мясницкая, д. 35

Ставка От 9,7%
Срок кредита 30 лет
Сумма От 1.93 млн руб
Телефон +7(495)777-24-24

Уралсиб

119048, г. Москва,ул. Ефремова, д. 8

Ставка От 11.5%
Срок кредита до 30 лет
Сумма От 8 млн руб.
Телефон +7(495)723-77-77

ДельтаКредит

125009, г. Москва, ул. Моховая, д.7

Ставка От 11.5%
Срок кредита до 25 лет
Сумма От 3 млн руб
Телефон +7(495)960-31-61

Возрождение

101990, г. Москва, Большой Златоустинский пер., д. 4

Ставка От 11.65%
Срок кредита 30 лет
Сумма От 5 млн руб.
Телефон +7(495)777-08-88

Сбербанк России

Москва, ул. Вавилова, 19

Ставка 7.5%
Срок кредита 30 лет
Сумма 30000000
Телефон +7 (800) 555-55-50

Заказать обратный звонок

Узнайте больше о проекте. Оставьте номер, и мы вам перезвоним.

Отправляя заявку, вы даёте своё согласие на обработку персональных данных

Другие новостройки застройщика

Хочешь быть в курсе новых строек?

Подпишись на нашу рассылку

Заявка на ипотеку